1Partner logo
www.1partner.ee
House For sale

E. Särgava allee 6a, Pirita, Tallinn, Harjumaa

https://www.1partner.ee/en/215705648734152670
Copy link
3 500 000 €
8 399.33 €/m2
Area
416.7 m2
Transaction
For sale
Cadaster number
78402:208:0008
Rooms
5
Bedrooms
2
Bathrooms
3
Floors
2
Year of construction
2023
Condition
New building
Plot size
4467 m²
Location
Harjumaa, Pirita

Ainulaadne eramu, milles ei ole veel sees elatud!

Erakordne elamu Tallinna ühes hinnatumas piirkonnas – Pirita-Kosel, Särgava allee 6a

Sügava läbimõeldud loogika, vaoshoitud vormikeele ning kõrgetasemelise arhitektuurikultuuri koosmõjul on valminud ainulaadne kodu, mis väljendab tasakaalu esteetika ja funktsionaalsuse, eraldatuse ja avatuse, vaikuse ja elamise vahel.

Asudes tupiktänava lõpus, kõrghaljastuse rüpes ning pilgule varjatuna, kannab see hoone endas ühtaegu nii vaikset kohalolu kui mõtestatud tagasihoidlikkust – eesmärk ei ole domineerida, vaid sobituda. Piirkonna rahu ja privaatsus loovad ideaalse keskkonna inimesele, kes hindab ennekõike diskreetsust ja sisulist väärtust.

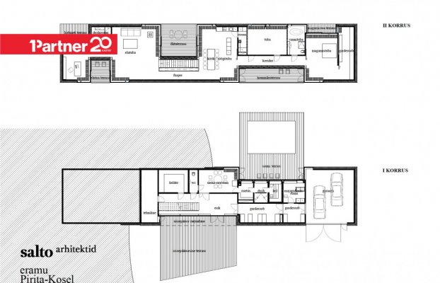
Arhitektuur ja ruumiline loogika

Hoone planeering järgib põhja-lõuna telge, võimaldades liikuda läbi kogu krundi loomuliku valguse saatel. Krundi paigutus loob kaks iseloomult erinevat väliruumi: sisenemishoovi koos arhitektuuriliselt varjatud peasissepääsuga ja õhtupäikesesse avaneva tagahoovi, mille taustaks jääb looduslik vaade Varsaallikale.

Hoone sisestruktuur lähtub Eesti rehielamu loogikast: kolm iseseisvat, ent vajadusel ühenduvat tsooni – töine sektsioon, keskne igapäevaelu sektsioon ning majaomaniku privaattsoon. Nende vahele jäävad soovi korral suletavad uksed, mis võimaldavad saavutada täieliku ruumilise iseseisvuse – olgu töö, külaliste vastuvõtu või isikliku rahu tarbeks. Samas, kui kõik uksed on avatud, tekib läbiv visuaalne ja funktsionaalne ühendus – vaated ulatuvad sõna otseses mõttes ühest maja otsast teise. Sama läbivust toetab akende paigutus, mis on arhitektuurselt täpselt ja tundlikult valitud – juhtimaks mitte ainult valgust, vaid ka perspektiivi.

Tavapärasest erinevalt ei ole kõrget taset rakendatud üksnes elu- ja esindusruumides, ka garaažis on korralikud (nurgaga) aknad, võimaldades loomulikku valgust ning pakkudes sellele ruumile harvaesinevat avatust ja väärikust.

Ehituslik ja tehniline lahendus

- Kandekonstruktsioonid: monoliitbetoonist lintvundament, raudbetoonist välisseinad ja -põrandad
- Katus: monoliitbetoonist katuslagi, viimistluseks must killustik ja siberi lehisest terrassilaudis
- Aknad ja uksed: alumiiniumprofiil, kolmekordne klaaspakett, integreeritud klaasfassaad
- Ventilatsioon: energiatõhus sundventilatsioon koos soojustagastusega
- Küte: vesipõrandaküte maasoojuspumba baasil
- Tuleohutus: automaatne tuletõrjesignalisatsioon, suitsuandurid, eraldatud tuletõkkesektsioonid (garaaž, saun, tehnoruum)

Elamisväärne arhitektuur – mitte pelgalt kinnisvara

Arhitekt Ralf Lõoke (Salto arhitektuuribüroo) on loonud elukeskkonna, mis ei ole pelgalt funktsionaalne – see on kujundatud kui elamine ümber iseenda. Fassaadid on viimistletud unikaalse terrassiitkrohviga, mille tekstuur ja valgusmäng loovad iga ilmaga uue meeleolu. Klaasist läbivaated, terrassid ja peidetud vaatesuunad loovad dünaamika, mis on ühtaegu intiimne ja avatud.

Elamu valmis 2018. aastal pärast mitmeaastast mõttelist küpsemist, põhjalikku projekteerimist ja kvaliteetset ehitust. Maja ehitas 1Partner Ehitus. Aastal 2021 nomineeriti hoone Eesti parima kolme uue eramu hulka – tunnustus, mis peegeldab selle arhitektuurilist tundlikkust ja ajatut kvaliteeti.

See ei ole maja mitte ainult neile, kes otsivad pelgalt kinnisvara, see on kodu neile, kes otsivad tähendust, isikupära ja ajatust. Siin avaneb võimalus olla esimene, kes selle erilise maja oma energiaga täidab!

Tehnilised andmed
Ehitisealune pind: 356,7 m²
Ehitusalune pind: 308,2 m²
Suletud netopind: 416,7 m²
Avatud brutopind: 519,8m²
Tubade arv: 4, (vajadusel 5)
Garaaž: 51 m²
Lisaruumid: saunakompleks, raamatukogu, garderoob, esik, majapidamisruum jmt

Arhitektuur: Maarja Kask, Karli Luik, Ralf Lõoke, Andro Mänd, Margus Tamm (Salto AB)
Sisearhitektuur: Pille Lausmäe-Lõoke
Maastikuarhitektuur: Reet Sillaots
Ehitus: 1Partner Ehitus

Aitan Teid kinnisvara müümisel ja üürile andmisel ning hindamisel, ostmisel ja laenu taotlemisel.
Korrektsed lepingud ja professionaalsed tehingud. Tasuta konsultatsioon. Reklaam kõikides suurimates kinnisvaraportaalides, välimeedias ja ajalehtedes.

1Partner on Eesti üks juhtivatest kinnisvarafirmadest, mille põhiteenused on:
- vahendamine
- hindamine
- haldamine
- ehitamine
- arendamine
- investeeringute juhtimine

Kogu teave meie pakkumiste ja teenuste kohta: 1partner.ee
Interested in this property? Contact our agent —
Photo of Angela Virak
Interested in this property? Contact our agent —
Angela Virak
Communication:
Eesti / in English / по-pусски / Suomeksi
Image 1 of 62
Image 2 of 62
Image 3 of 62
Image 4 of 62
Image 5 of 62
Image 6 of 62
Image 7 of 62
Image 8 of 62
Image 9 of 62
Image 10 of 62
Image 11 of 62
Image 12 of 62
Image 13 of 62
Image 14 of 62
Image 15 of 62
Image 16 of 62
Image 17 of 62
Image 18 of 62
Image 19 of 62
Image 20 of 62
Image 21 of 62
Image 22 of 62
Image 23 of 62
Image 24 of 62
Image 25 of 62
Image 26 of 62
Image 27 of 62
Image 28 of 62
Image 29 of 62
Image 30 of 62
Image 31 of 62
Image 32 of 62
Image 33 of 62
Image 34 of 62
Image 35 of 62
Image 36 of 62
Image 37 of 62
Image 38 of 62
Image 39 of 62
Image 40 of 62
Image 41 of 62
Image 42 of 62
Image 43 of 62
Image 44 of 62
Image 45 of 62
Image 46 of 62
Image 47 of 62
Image 48 of 62
Image 49 of 62
Image 50 of 62
Image 51 of 62
Image 52 of 62
Image 53 of 62
Image 54 of 62
Image 55 of 62
Image 56 of 62
Image 57 of 62
Image 58 of 62
Image 59 of 62
Image 60 of 62
Image 61 of 62
Image 62 of 62

Recently viewed

House
For sale Vana-Kalamaja tn 30, Põhja-Tallinna, Tallinn, Harjumaa
KALAMAJAS TOIMIV KORTERMAJA KOOS TÄIENDAVA EHITUSÕIGUSEGA!!
Price
1 825 000 €
Area
917.4 m2
House
For sale Ilmarise tee 26, Metsanurme küla, Saku vald, Harjumaa
PERESÕBRALIK JA VALGUSKÜLLANE KODU METSANURMES, SAKU LÄHISTEL
Price
235 000 €
Area
164.3 m2
Rooms
5
House
For sale Hellerheina tee 26, Maardu linn, Harjumaa
Kodu, kus ruumi jagub kõigile – kamin, terrass ja vaikne aed
Price
329 000 €
Area
147 m2
Rooms
5