1Partner logo
www.1partner.ee
Commercial For sale

Kalasadama tn 4a, Põhja-Tallinna, Tallinn, Harjumaa

https://www.1partner.ee/en/601355754640364900
Copy link
750 000 €
2 532.07 €/m2
Area
296.2 m2
Transaction
For sale
Cadaster number
78401:101:2196
Floors
5
Floor
1
Purpose
Office, Food services, Services, Trade/shop
Location
Harjumaa, Tallinn

AVAR JA MULTIFUNKTSIONAALNE VITRIINAKENDEGA ÄRIPIND KALASADAMAS

Müüme esindusliku ja avara industriaalstiilis äripinna 2018. aastal valminud majas.
Ruumid pakuvad laialdasi kasutusvõimalusi ning asuvad linna ühes kiiremini arenevas ja väärtuslikumas mereäärses piirkonnas.

Naabriks Kultuurikatel, Kalaranna arendus, merepromenaad, pisut kaugemal Noblessneri kvartal, Patarei merekindlus ja vanalinn.

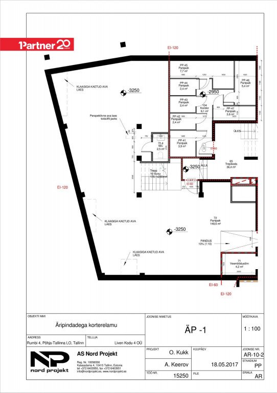
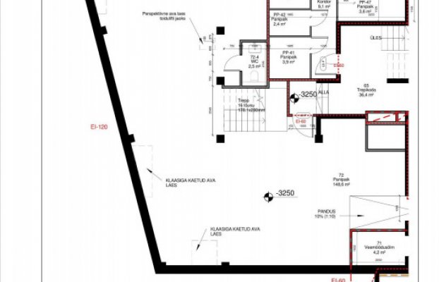
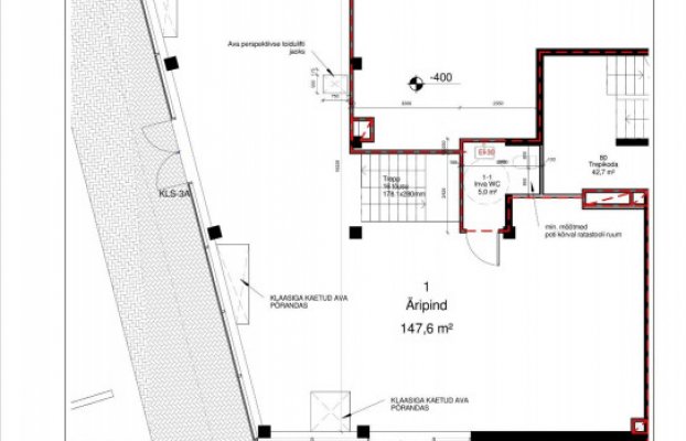
PLANEERING JA RUUMID
Pind paikneb kahel tasapinnal, mõlemad suurusega ca 150 m²
• Esimene korrus on avatud planeeringuga, suurte vitriinakendega ja üle 3 meetri kõrguste lagedega. Ruumis asub klaasustega eraldatud nõupidamisruum ja WC
• Soklikorrusel on avar ruum, kuhu langeb loomulik valgus läbi esimese korruse põrandasse/lakke integreeritud klaasavade
• Pinnale on kaks eraldi sissepääsu

TEHNILISED LAHENDUSED
• Kaugküttel põhinev vesipõrandaküte
• Nõuetele vastav kaasaegne ventilatsioonisüsteem

PARKIMINE
• Hinna sisse kuulub võimalus parkida kahte autot maja ees
• Hinna sees parkimiskoht maa-aluses garaažis (eraldiseisev korteriomand)

HINNALE LISANDUB KÄIBEMAKS!






Aitan Teid kinnisvara müümisel ja üürile andmisel ning hindamisel, ostmisel ja laenu taotlemisel.
Korrektsed lepingud ja professionaalsed tehingud. Tasuta konsultatsioon. Reklaam kõikides suurimates kinnisvaraportaalides, välimeedias ja ajalehtedes.

1Partner on Eesti üks juhtivatest kinnisvarafirmadest, mille põhiteenused on:
- vahendamine
- hindamine
- haldamine
- ehitamine
- arendamine
- investeeringute juhtimine

Kogu teave meie pakkumiste ja teenuste kohta: 1partner.ee
Interested in this property? Contact our agent —
Photo of Ivo Jaama
Interested in this property? Contact our agent —
Ivo Jaama
Communication:
eesti / по-pусски / in English
Image 1 of 11
Image 2 of 11
Image 3 of 11
Image 4 of 11
Image 5 of 11
Image 6 of 11
Image 7 of 11
Image 8 of 11
Image 9 of 11
Image 10 of 11
Image 11 of 11