1Partner logo
www.1partner.ee
Korter Müüa

Juhkentali tn 14, Kesklinn, Tallinn, Harjumaa

https://www.1partner.ee/770383687379937700
Kopeeri link
395 000 €
5 316.29 €/m2
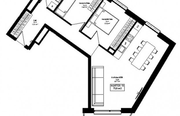
Üldpind
74.3 m2
Tehing
Müüa
Katastrinumber
78401:116:1200
Tube
3
Magamistube
2
Vannitube
1
Korruseid
5
Korrus
3
Ehituse aasta
2025
Seisukord
Uus ehitis
Asukoht
Harjumaa, Kesklinn

NÄIDISKORTER!

https://kalevimaja.ee/

Aknad ja rõduuksed on 3x klaaspaketiga saksa tüüpi kvaliteetsed puitaknad, mis vastavad kõrgendatud heliisolatsiooninõuetele. Korterite suur väärtus on avarust lisavad kõrged laed.

Juhkentali 14 kinnistule on ehitatud 5. korruseline hoone. Esimesel korrusel asuvad äripinnad ja ülejäänud korrustel korterid. Asudes sisuliselt Kalevi Spordihalli esisel platsil, on hoone planeeritud arhitektuurselt silmapaistava nurgahoonena. Korvpallisaali kaarkatuse kontekst on see, mis on ajendanud kaare motiivi kasutama ka Juhkentali 14 hoonel. Maja välisfassaad on kaetud krohvisüsteemis tellisemotiiviga, mida ilmestavad tugevad kaaremotiivid. Maja all soklikorrusel paiknevad parkimiskohad kortermaja elanikele. Parkimise katusepealne ja hoov on kaetud muruga, ligipääsud asfalteeritud. Sissesõit soklikorrusele on Juhkentali tänavalt. Autovärav avaneb automaatikaga. Lisaks parkimiskohtadele on keldris panipaigad ja tehnilised ruumid.

Arhitektid on näinud tublisti vaeva, et viimane kui üks korter oleks suurepärase kaasaegse planeeringuga ja optimaalse ruumikasutusega. Korterite suur väärtus on avarust lisavad kõrged laed. Majal on maa-alune parkla, kust saab liftiga sõita otse oma korrusele, Hoones on panipaigad ja eraldi jalgrattaruum, oma kinnine ja turvaline hoov. Lühidalt - kõik, mida oma kodult tänapäeval ootad.

Hoone on projekteeritud A-klassi. Energiasäästlikud tehnosüsteemid aitavad kaasa energiatõhususele ja ideaalse sisekliima loomisele. Katusel on päikesepaneelid, mis aitavad energiakulusid kontrolli all hoida. Hoone kõikides ruumides on põrandaküte, mis tagab efektiivsema kütmise. Hoone ventilatsioon on soojatagastusega.

Soovi korral lisandub parkimiskoha ja panipaiga maksumus vastavalt 33 000.- ja 5000.-

Aitan Teid kinnisvara müümisel ja üürile andmisel ning hindamisel, ostmisel ja laenu taotlemisel.
Korrektsed lepingud ja professionaalsed tehingud. Tasuta konsultatsioon. Reklaam kõikides suurimates kinnisvaraportaalides, välimeedias ja ajalehtedes.

1Partner on Eesti üks juhtivatest kinnisvarafirmadest, mille põhiteenused on:
- vahendamine
- hindamine
- haldamine
- ehitamine
- arendamine
- investeeringute juhtimine

Kogu teave meie pakkumiste ja teenuste kohta: 1partner.ee

Kas olete huvitatud sellest kinnisvarast? Võtke ühendust meie maakleriga!
Foto  Olga Kruglova
Kas olete huvitatud sellest kinnisvarast? Võtke ühendust meie maakleriga!
Olga Kruglova
Kommunikatsioon:
По-русски / eesti
Pilt 1 of 59
Pilt 2 of 59
Pilt 3 of 59
Pilt 4 of 59
Pilt 5 of 59
Pilt 6 of 59
Pilt 7 of 59
Pilt 8 of 59
Pilt 9 of 59
Pilt 10 of 59
Pilt 11 of 59
Pilt 12 of 59
Pilt 13 of 59
Pilt 14 of 59
Pilt 15 of 59
Pilt 16 of 59
Pilt 17 of 59
Pilt 18 of 59
Pilt 19 of 59
Pilt 20 of 59
Pilt 21 of 59
Pilt 22 of 59
Pilt 23 of 59
Pilt 24 of 59
Pilt 25 of 59
Pilt 26 of 59
Pilt 27 of 59
Pilt 28 of 59
Pilt 29 of 59
Pilt 30 of 59
Pilt 31 of 59
Pilt 32 of 59
Pilt 33 of 59
Pilt 34 of 59
Pilt 35 of 59
Pilt 36 of 59
Pilt 37 of 59
Pilt 38 of 59
Pilt 39 of 59
Pilt 40 of 59
Pilt 41 of 59
Pilt 42 of 59
Pilt 43 of 59
Pilt 44 of 59
Pilt 45 of 59
Pilt 46 of 59
Pilt 47 of 59
Pilt 48 of 59
Pilt 49 of 59
Pilt 50 of 59
Pilt 51 of 59
Pilt 52 of 59
Pilt 53 of 59
Pilt 54 of 59
Pilt 55 of 59
Pilt 56 of 59
Pilt 57 of 59
Pilt 58 of 59
Pilt 59 of 59

Hiljuti vaadatud

Korter
Müüa Posti tn 2, Lagedi alevik, Rae vald, Harjumaa
Posti tn 2
Hind
66 000 €
Üldpind
33 m2
Tubade arv
1
Korter
Müüa Juhkentali tn 14, Kesklinn, Tallinn, Harjumaa
KOLI SISSE JA NAUDI NÄIDISKORTER ELAMISEKS VALMIS!!!
Hind
395 000 €
Üldpind
74.3 m2
Tubade arv
3